Planujesz skredytować to marzenie – zadzwoń.
Mieszkanie na parterze w niskim budynku wielorodzinnym, z ogródkiem oraz dużym słonecznym tarasem. Idealne dla rodziny.
Cztery pokoje w zielonej okolicy w Dobrej, w pobliżu liczne ścieżki rowerowe oraz piesze. Budynek z końca lat 90tych.
Bardzo dobrze skomunikowane miejsce, szybki i wygodny dojazd do centrum Szczecina lub w kierunku Niemiec.
W pobliżu przystanek autobusowy oraz niedawno otwarty dyskont.
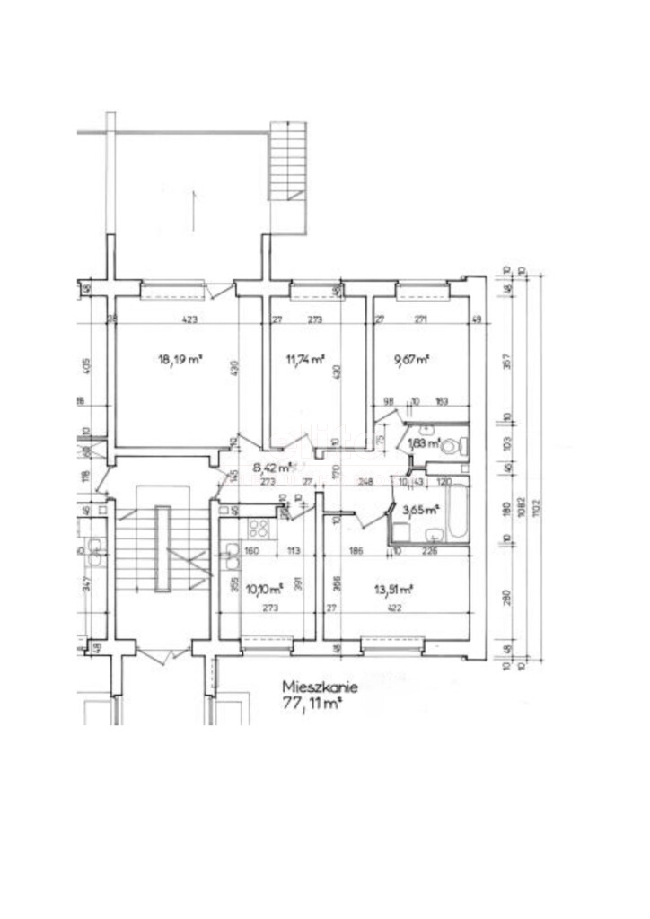
Na powierzchnię mieszkania 80,10 m2 składają się:
-pokój dzienny z wyjściem na taras oraz ogród
-3 sypialnie
-kuchnia
-łazienka oraz osobne WC
-komunikacja
Ogrzewanie i ciepła woda z dwuobiegowego pieca gazowego. Czynsz administracyjny około 800 zł. Do mieszkania przynależy duża piwnica o powierzchni około 18 m2.
Zapraszam na prezentację.
Każdy zainteresowany zakupem nieruchomości z naszej bazy ofert ma gwarantowaną obsługę w zakresie uzyskania kredytu (bez prowizji od kupującego i dodatkowych kosztów związanych z załatwieniem kredytu). Współpracując z największym brokerem kredytowym na rynku polskim możemy sprawdzić dla Państwa zdolność kredytową w ponad 20 bankach. O szczegóły proszę pytać agenta odpowiedzialnego za to ogłoszenie.
Powyższe ogłoszenie ma wyłącznie charakter informacyjny. Nie stanowi ono oferty w myśl art. 66 i n. ustawy z dnia 23.04.1964r. Kodeks cywilny (Dz.U. 1964r. Nr 16, poz. 93, ze zm.).
POTRZEBUJESZ PILNIE GOTÓWKI? SPIESZY SIĘ TOBIE Z SPRZEDAŻĄ MIESZKANIA? - MOŻEMY TWOJE MIESZKANIE KUPIĆ ZA GOTÓWKĘ!
Chcesz otrzymywać podobne oferty?
Skorzystaj z automatycznych powiadomień e-mail o nowych ogłoszeniach w wybranych kryteriach wyszukiwania




























